Haus des Kindes

Haus des Kindes

Auftraggeber

Amt Golßener Land

Kooperation

Mit J.Brinkmann, B. Huckriede

Ort

Golßen

Projektjahr

2009

Leistungsphase

1-8

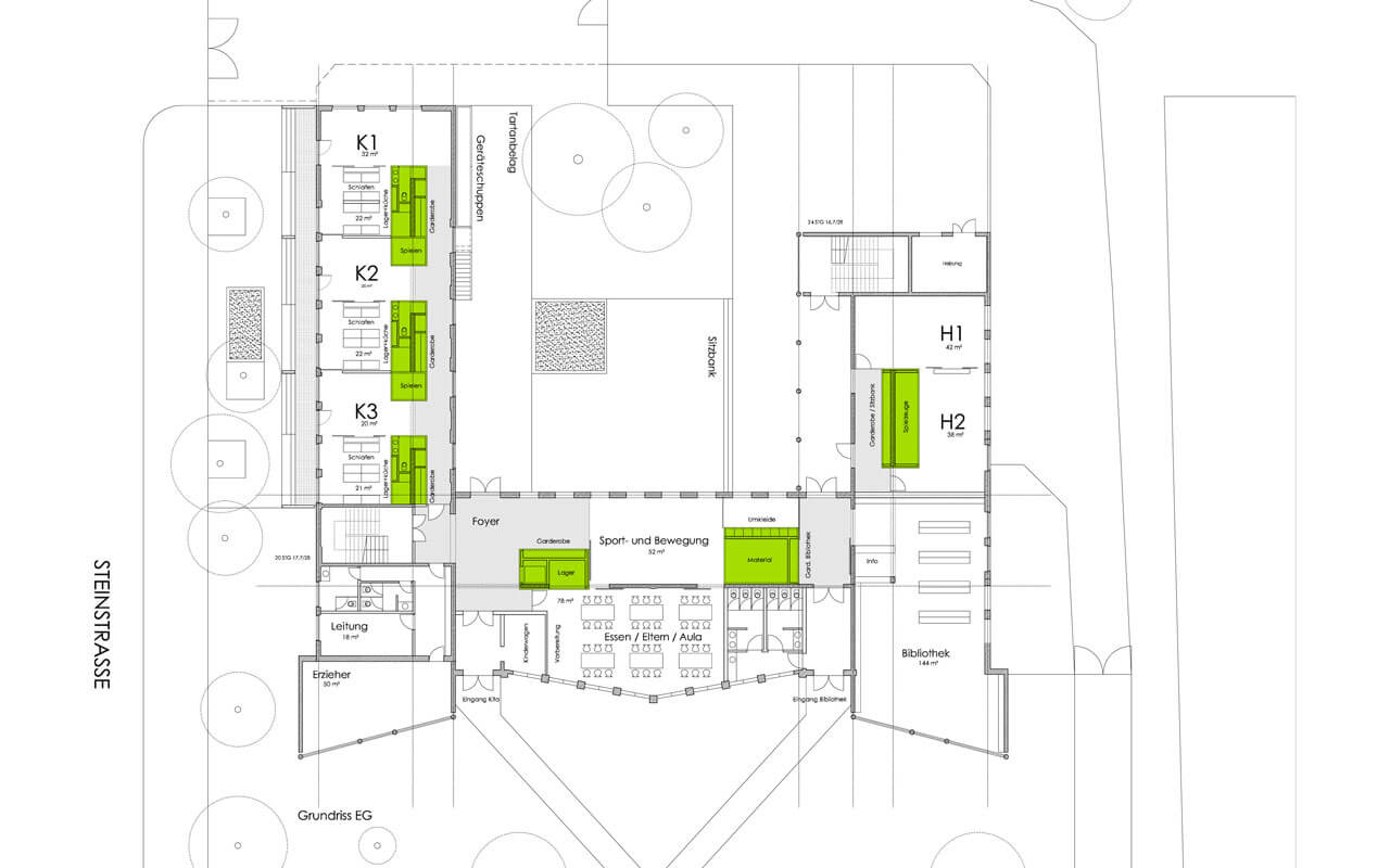
Umbau einer Schule in eine Kita für 110 Kinder. Die Gruppenräume organisieren sich in offenen Strukturen, die mittels einer zentralen Kette von Serviceboxen aus transluzentem Polycarbonat die neue Nutzung flexibel ermöglichen. Garderoben, Materiallager, Regale sowie Rückzugsbereiche werden von den Kindern spielerisch verwendet.

Vorzeigeobjekt Tag der Architektur in Brandenburg 2010, ausgezeichnetes Objekt für Beispielhafte, nachhaltige und besonders qualitativ gestaltete Gebäude in der Region, der AK Brandenburg 2010.

Fotos: Frank Hülsbömer

Haus des Kindes - Grundriss
Grundriss
Haus des Kindes - Grundriss
Grundriss Krippe
Haus des Kindes - Modell
Modell
Golßen

Copyright © 2020 tmes-architekten All rights reserved.