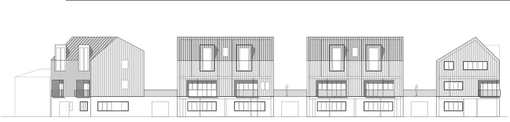
Entwicklung eines städtebaulichen und architektonischen Konzeptes zur Neuordnung und Klärung des wasserseitigen Stadteinganges und Altstadtrand von Ueckermünde an der Grabenstrasse. Auf dem länglichen Grundstück entlang der Ucker wird ein Grundtypus Haus mit Maisonettwohnungen auf einem stadträumlich geschlossenen Sockel mit barrierefreien altersgerechten Wohnungen entwickelt.