Kita Friedberg

Kita Friedberg

Nicht offener Realisierungswettbewerb & Anerkennung

Auftraggeber

Magistrat der Stadt Friedberg

BGF

1700m²

Ort

Friedberg

Projektjahr

2017

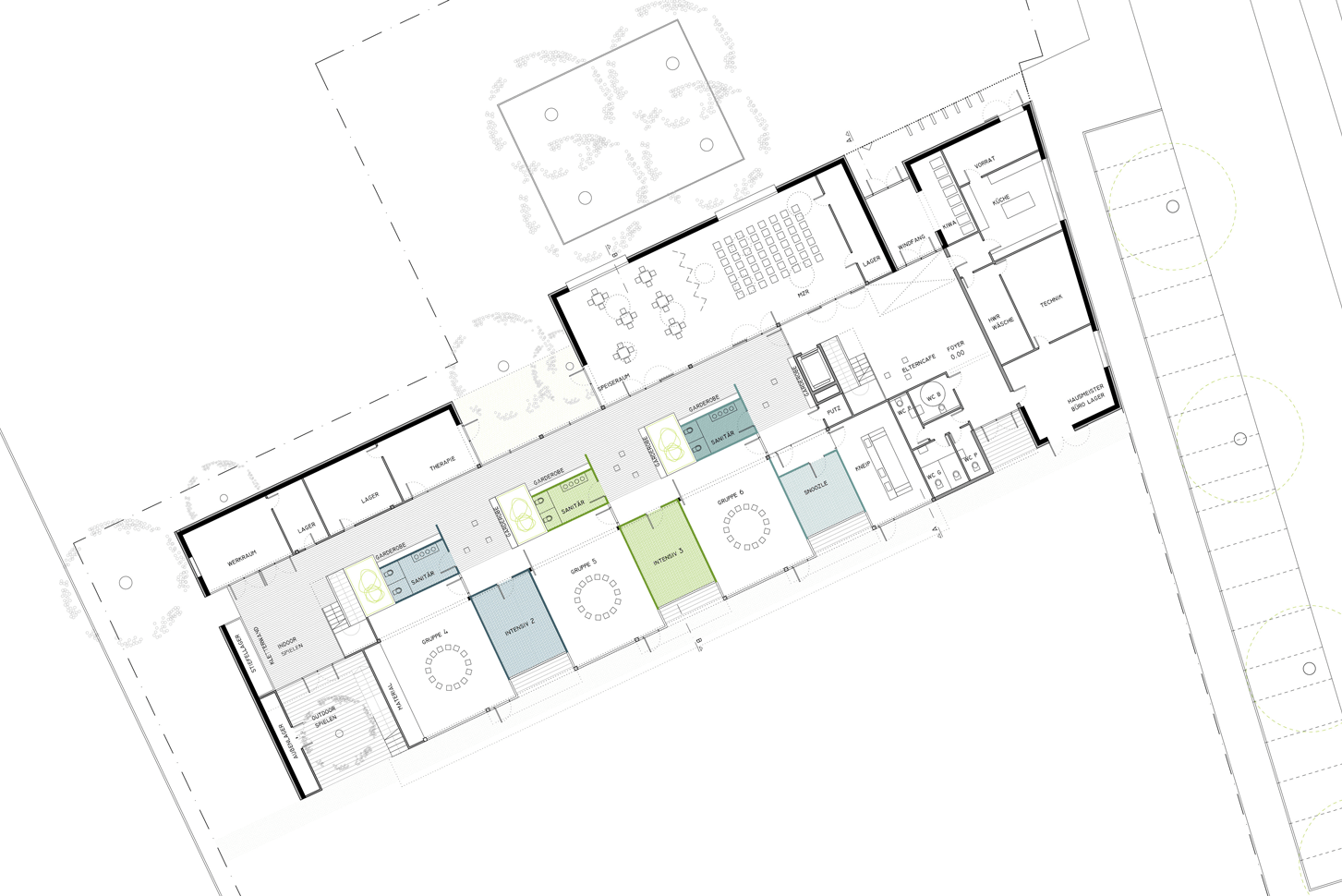
Realisierungswettbewerb zum Neubau einer 6-gruppigen Kindertagesstätte auf dem ehemaligen Kasernengelände.

Der Entwurf fügt sich als ordnendes Element in den städtebaulichen Kontext ein. Die Ost-West Ausrichtung des länglichen Baukörpers schafft eine klare Zonierung des vorhandenen Grundstücks und fungiert gleichzeitig als räumlicher Abschluss der städtebaulichen Struktur. Nördlich des Gebäudes entsteht ein öffentlicher Raum, der als Quartiersplatz einen Ort des Treffens und eine gewisse Zentralität für das benachbarte Wohngebiet anbietet.

Das Gebäude besteht grundsätzlich aus einem zweigeschossigen Baukörper, der ausschließlich die Räume der Kinder beherbergt. Dieser „Kern“ wird durch drei eingeschossigen Baukörper ergänzt, welche als eine Art schützend und dienender Sockel die restlichen Funktionen des Gebäudes beinhaltet. Dieser Sockel wirkt, ähnlich wie bei einer Burg, als eine Wallanlage, die spielerisch erobert werden kann, um ein durch Licht und Farbe geprägtes Innere zu entdecken.

Lageplan
Schwarzplan
Schnitte
Grundriss OG
Grundriss EG

Copyright © 2020 tmes-architekten All rights reserved.