Villa UEM

Villa UEM

Auftraggeber

Privat

Kooperation

Mit dh-ingenieure

Nuf

1.400 m²

Ort

Ueckermünde

Projektjahr

2016

Leistungsphase

1 – 3

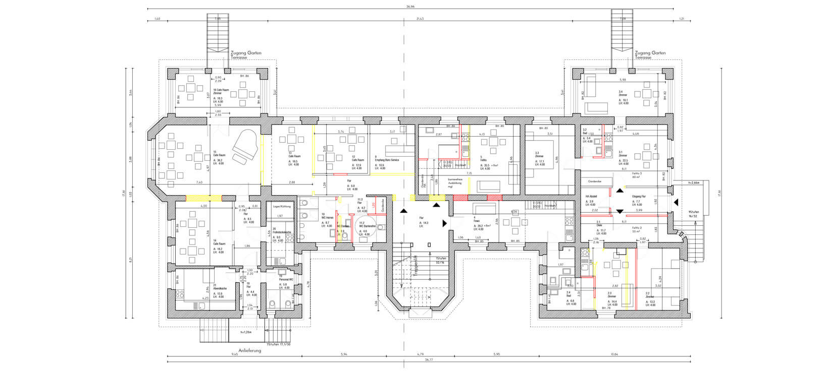
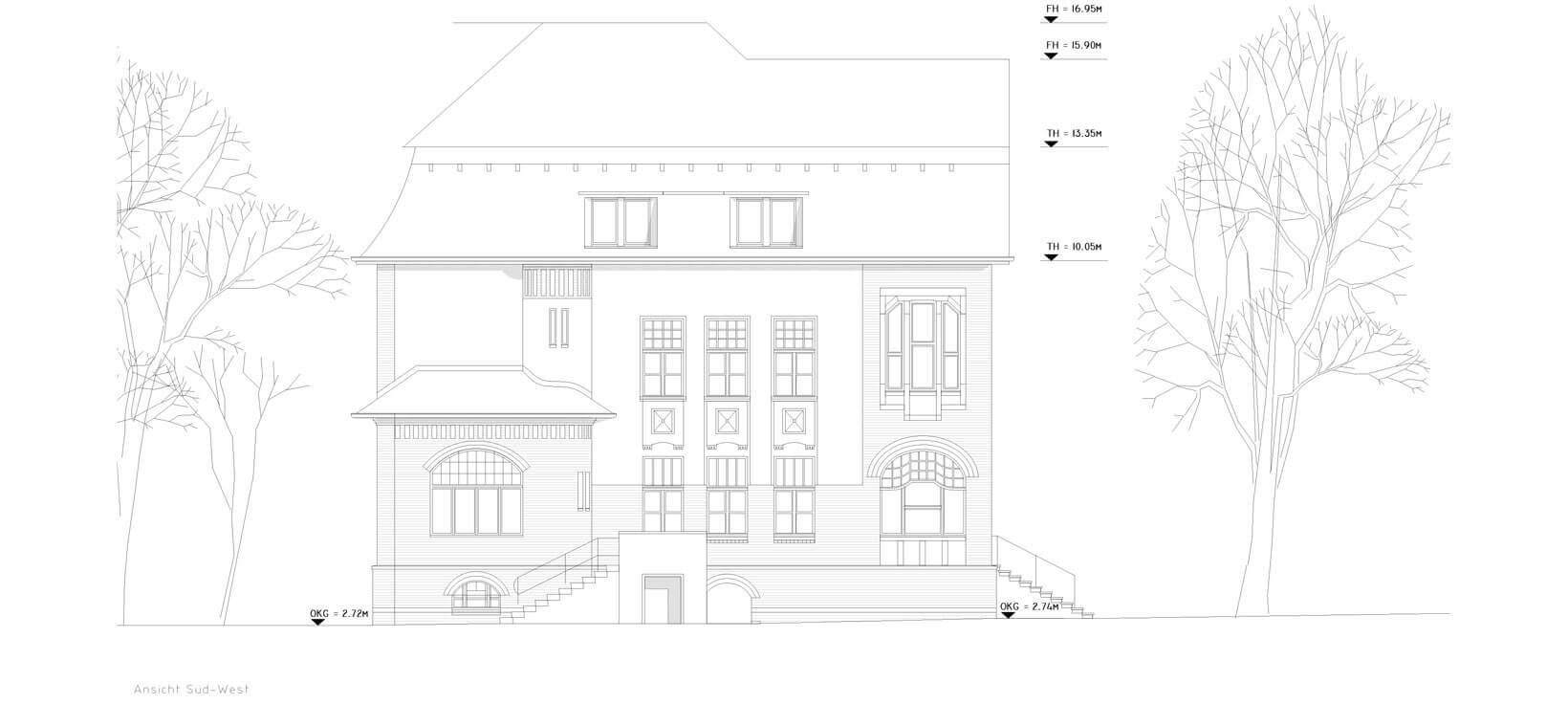
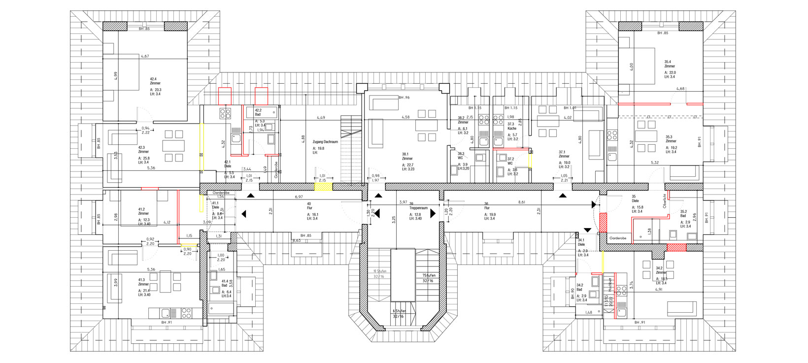
Umbau und Sanierung einer historischen denkmalgeschützten Villa zu Kulturcafe, Restaurant und Ferienwohnungen.

Erdgeschoss
Dachgeschoss

Copyright © 2020 tmes-architekten All rights reserved.