Realisierungswettbewerb zum Neubau einer 10-gruppigen Kindertagesstätte.
Auszug aus dem Preisgericht:
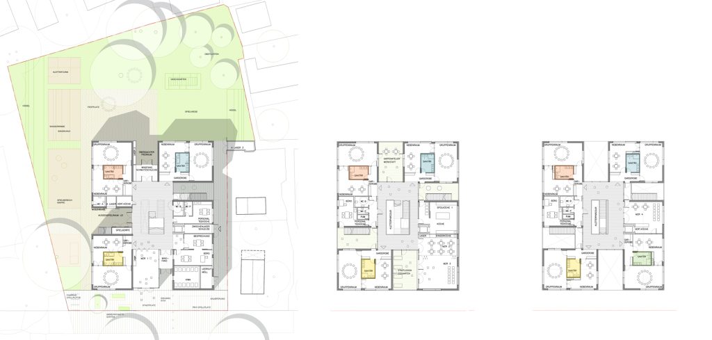
Der Entwurf platziert das Volumen des Neubaus straßenbegleitend und kompakt entlang der Triftstraße. Mit seinem Stadtplatz als Vorzone tritt das 3-geschossiges Gebäude mit geneigten Dächern gut proportioniert im Stadtraum in Erscheinung. Die raumsparende Setzung und Anordnung des Volumens ermöglicht es, nach Westen und nach Norden einen verhältnismäßig großen Teil des Grundstücks von Bebauung frei zu halten und eine Vernetzung mit den umliegenden Einrichtungen zu ermöglichen. Gestalterisch entwickeln die Verfasser*innen ein Gebäudeensemble mit vier archetypischen Häusern auf einem gemeinsamen Sockel. Den vier sog. Kinderhäusern werden jeweils Farbschemata zugeordnet, um die Wiedererkennbarkeit für die Kinder zu steigern. Die mit dieser Lösung entstehende Differenzierung der Baukörper erzeugen einen angenehm dorfähnlichen Maßstab, was vom Preisgericht gewürdigt wird. Verbunden werden die Kinderhäuser durch das zentrale Spielhaus, das mehrere Funktionen übernimmt. Insgesamt handelt es sich um einen konzeptionell wertvollen Beitrag, der eine hohe räumliche Qualität und Durcharbeitung erkennen lässt. Auch der ökologische Anspruch des Entwurfs wird gewürdigt.